MindManager 8 and integrated Autodesk Design Review
An earlier post showed how MindManager 8 integrates Microsoft Office document editing with the new Browser Pane. The same function allows you to review and mark-up Autodesk Design Web Format (DWF) doc...
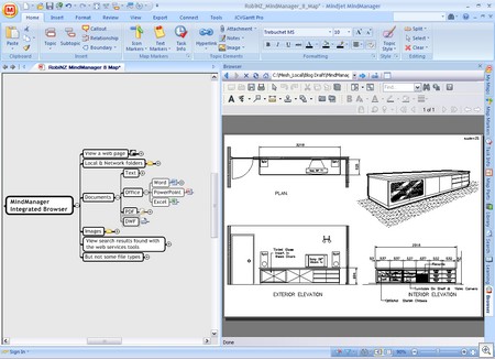
An earlier post showed how MindManager 8 integrates Microsoft Office document editing with the new Browser Pane. The same function allows you to review and mark-up Autodesk Design Web Format (DWF) documents from within MindManager. Click on a topic with a DWF link and the Browser Pane loads Autodesk Design Review (ADR). From here you can do all the usual ADR tasks like mark-up & measure while also having access to MindManager for notes.

Making space to work - Workspaces!
The default ADR toolbars & panels can overwhelm the Browser Pane. With ADR 2009 you can turn on only those controls you need for a task and save the workspace, mine is called "Simple". This allows your layout to be retained or restored easily. Create & save your workspace in ADR as it's not possible from the Browser Pane toolbar.


Integrated Design Review is alive in the Map! *
* That line seems vaguely familiar for some reason.