Historic DWF's?

How can you share a really old CAD file for someone to print or view when they don’t have the software? Could make a DWF but the old legacy application doesn’t support them.
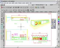
I faced this with an old file I created in 1993 using AutoSketch (see screenshot) as I now use ADT and never upgraded AutoSketch. I could have saved to dwg from Autosketch, then opened & published in ADT but that’s a hassle.
This was a good test for the new Autodesk DWF writer. It allows you to "print a DWF" from CAD applications (and many others) that don't support the format natively. In the application you print as normal but selecting “DWF Writer” where you would normally select a printer.
My last AutoSketch (2.1) still runs on a P4/Xp-Pro box (better than it ever ran on a 486/win 3.1!) so just opened the file & used DWF Writer to create a DWF file that was as good as the original. Problem solved!
Open the DWF created with Autosketch + DWF Writer
PS: Yes, I did use AutoSketch for real work back then. Surprising what you can do with basic 2d tools and 10 numbered layers!
Free Autodesk DWF Writer & DWF Viewer Downloads from here Check out the DWF Video also!