Time flies, it’s Autodesk 2009!
Autodesk have announced their “2009” product releases including AutoCAD, AutoCAD Architecture/MEP and Revit Architecture/MEP. While there is a lot to see in these products some of the announcements ma...
Autodesk have announced their “2009” product releases including AutoCAD, AutoCAD Architecture/MEP and Revit Architecture/MEP. While there is a lot to see in these products some of the announcements made today regarding acquisitions and subscription are just as interesting. It’s a month or so before the release products ship but via the MyFeedback program I’ve had access to a few of them for a while. There are some major changes in all the applications and lots of refinements, although some I’d classify as bug fixes. These are my highlights from the releases, I’ll follow with more detail in future posts. To maximise browser compatibility I’ve shared animations (captured with Camtasia) in .gif format which does limit colour and gradient rendition. The static captures are a better guide to the true appearance, in my case as seen on Windows XP, and details may change between now & release.

AutoCAD 2009 – It’s the User Interface…
While there are lots of refinements the major impact is how AutoCAD looks and feels. If you’ve recently upgraded to Office 2007 things might seem a little more familiar but AutoCAD veterans are in for a shock. AutoCAD has adopted many of the principles and general layout of the Microsoft Fluent UI however, unlike Office, Autodesk’s interface allows full customisation. It’s all new from the “
A” (for AutoCAD) desktop icon to the “
AutoCAD” Button, Menu Browser and Ribbon. Even the old status bar text toggles have changed to swish new icons. The focus shifts from tools to tasks as, like Office, the interface attempts to present tools and controls relevant to your work-flow. If your priorities differ the AutoCAD Ribbon allows the same level of customisation as the previous toolbar UI. Unlike Microsoft Office, AutoCAD also retains the old UI so those who can’t live without the legacy Menu/Toolbar model have still that option. Of course the command line, dynamic cursor input and keyboard shortcuts are there for those who prefer the keyboard approach.
- This capture shows the “AutoCAD Button” and Menu Browser which allows access to Menus, Recent & Open Files and Recent Actions. The options for thumbnail and image previews make finding & selecting files easier. The Quick Access toolbar (next to the A, displaying New, Open, Save etc here) can hold any command you use frequently.

- Below you see a few features of the AutoCAD Ribbon in action. It can be partially or completely hidden (it flies out when you hover over it) and the individual panels can be pinned open or torn off. New look icons and tool-tips are featured which have a crisp, if monotone, appearance more like Inventor. The ribbon is customised using the CUI (shudder) and combines with the existing “workspace” and Tool Palettes to support a task focused approach. Sadly the appearance is a bit Henry Ford! Any colour you like as long as it is dark or light grey. I suspect it was designed for Vista as, to my eyes, clashes horribly with the default XP blue & beige. I’m running XP with the grey theme which is more acceptable. Layers can be managed from the Ribbon Panel, a traditional layer dialog or a new mode-less, always open, dialog.

- The new status icons for Snap, Grid, Ortho, Polar etc replace the old text labels.

- AutoCAD now features refined 3D View Cube (nice!) and Steering Wheel controls (yuk!) similar to those previously seen in Autodesk Design Review!



AutoCAD Architecture 2009 – Refinement, Refinement…
As usual AutoCAD Architecture inherits many of the AutoCAD features, but interestingly not all. It makes less use of the Ribbon and won’t use the mode-less Layer dialog seen in AutoCAD. It features improvements to Walls (Cleanup and end-caps), Spaces and Project Navigator to aid work-flow. Perhaps my favourite feature is a tiny one. When you have over a hundred live projects the ability to close the current one from Project Navigator, without opening and finding it in Project Browser, is awesome!
- AutoCAD Architecture in Design Workspace Menu/Toolbar and Visualisation Workspace Ribbon mode.



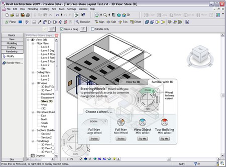
Revit Architecture 2009 – Exceptional Rendering…
Yes, Revit could always render, thanks to Accurender, but invariably it looked “OK, except…”. For 2009 the factory have incorporated the high quality Mental Ray render engine as seen in Max, AutoCAD and other products. This change alone would justify Revit 2009 for me but there are many other improvements. Sadly apart from an “
R” desktop icon (get it?) Revit has not benefited from major UI changes other than the View Cube and Steering Wheel 3D viewing controls seen in other Autodesk products. The new render UI is delightfully simple and credit to the team. Inter-operation between Revit and Max has also been improved.



Other announcements:
- Autodesk announce acquisitions of analysis technologies from Green Building Studio and Carmel Software
- Autodesk Impression free for AEC application subscription customers!? See this post for more detail
- 3ds Max Design and 3ds Max 2009 Entertainment announced. Autodesk also announced Viz development is ending and it’s “encouraging customers to shift to 3ds Max Design”. As a Viz user, subscriber, I’ll be interested to see what form this “encouragement” takes as the press release only has US pricing!
That’s all for now, it’s time for bed!